HOME
ABOUT NGE
NGE CONCEPT
SERVICES
PROJECTS
SUPERVISION
CONSULTANCY
PORTFOLIO
PROJECTS
COMMERCIAL BUILDINGS
MULTI-FAMILY BUILDINGS
SINGLE-FAMILY DWELLINGS
LOTS
SUPERVISION
CONTACTS
JOIN US
PT
EN
HOME
ABOUT NGE
NGE CONCEPT
SERVICES
PROJECTS
SUPERVISION
CONSULTANCY
PORTFOLIO
PROJECTS
COMMERCIAL BUILDINGS
MULTI-FAMILY BUILDINGS
SINGLE-FAMILY DWELLINGS
LOTS
SUPERVISION
CONTACTS
JOIN US
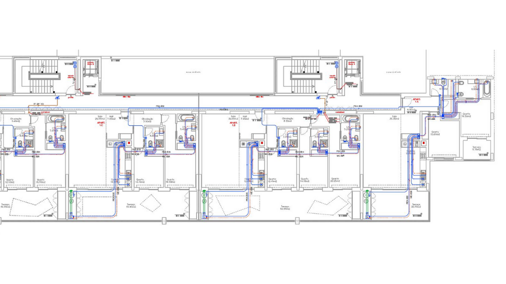
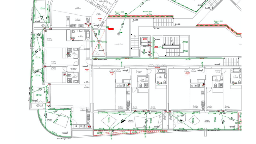
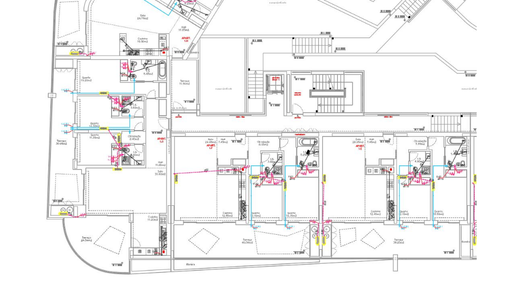
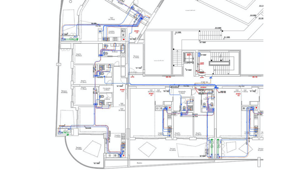
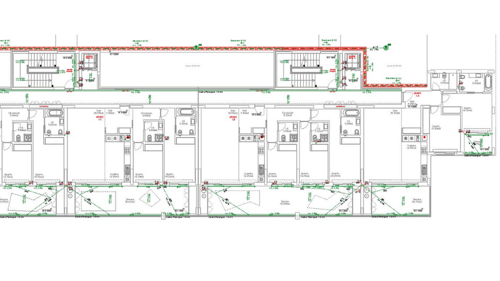
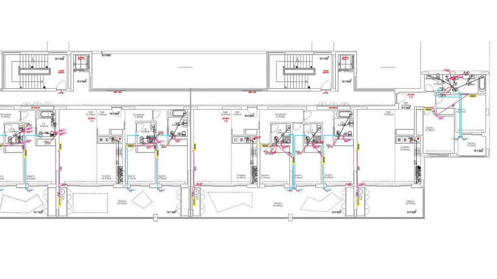
HORTA DO GALVÃO LOTE 9
Lagos
Consumer disputes
Privacy policy
Complaint book
Copyright © NG ENGENHARIA 2021
|
Development and Design :